Urządzenie funkcjonalnego warsztatu w piwnicy to marzenie wielu majsterkowiczów. Ten kompleksowy poradnik krok po kroku przeprowadzi Cię przez cały proces adaptacji i wyposażenia piwnicznej przestrzeni. Znajdziesz tu praktyczne rozwiązania typowych problemów, takich jak wilgoć czy słabe oświetlenie, a także wskazówki, jak stworzyć bezpieczne i ergonomiczne miejsce do realizacji swoich pasji.
Stwórz funkcjonalny warsztat w piwnicy praktyczny przewodnik po adaptacji i wyposażeniu
- Wilgoć i wentylacja: Kluczowe jest uszczelnienie ścian, hydroizolacja podłogi, stosowanie farb odpornych na wilgoć, osuszaczy oraz zapewnienie odpowiedniej wentylacji (grawitacyjnej lub mechanicznej).
- Oświetlenie: Postaw na jasne oświetlenie LED o neutralnej barwie (4000-5000 K) z wieloma punktami świetlnymi, aby wyeliminować cienie.
- Organizacja przestrzeni: Dokładnie zaplanuj układ, dzieląc piwnicę na strefy robocze i przechowywania, wykorzystując pionowe powierzchnie (tablice narzędziowe, regały).
- Wyposażenie: Zainwestuj w solidny stół warsztatowy oraz podstawowy zestaw narzędzi ręcznych i elektronarzędzi, takich jak wiertarko-wkrętarka.
- Bezpieczeństwo: Zadbaj o profesjonalną instalację elektryczną, gaśnicę, apteczkę i środki ochrony osobistej (okulary, rękawice).
- Warsztat w bloku: Sprawdź regulamin wspólnoty/spółdzielni i zadbaj o minimalizowanie hałasu oraz zapachów, aby nie być uciążliwym dla sąsiadów.
Stwórz swój warsztat w piwnicy czy to dobry pomysł?
Posiadanie własnego warsztatu w piwnicy to dla mnie osobiście strzał w dziesiątkę. To przede wszystkim dostępność dedykowanej przestrzeni, gdzie mogę swobodnie realizować swoje hobby, nie zakłócając domowego spokoju. Oddzielenie strefy pracy od reszty mieszkania pozwala mi na pełne skupienie i pozostawienie bałaganu po pracy, bez konieczności natychmiastowego sprzątania.
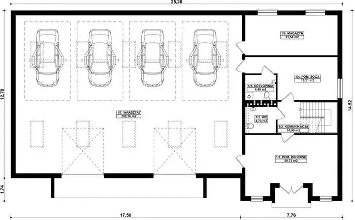
Piwnica, często niedoceniana, ma wiele cech, które sprawiają, że jest idealnym miejscem na warsztat. Przede wszystkim jest to zazwyczaj niewykorzystana przestrzeń, którą można zaadaptować bez uszczerbku dla innych funkcji domu. Dodatkowo, jej położenie pod ziemią zapewnia naturalną izolację od hałasu, co jest nieocenione przy pracy z elektronarzędziami. Często też panuje w niej stosunkowo stała temperatura, co jest korzystne zarówno dla komfortu pracy, jak i przechowywania narzędzi.Zanim jednak zabierzesz się za wnoszenie narzędzi i mebli, kluczowe jest przeprowadzenie wstępnej analizy i planowania. To etap, którego nie wolno pomijać. Musisz dokładnie ocenić stan techniczny piwnicy czy nie ma problemów z wilgocią, jak wyglądają istniejące instalacje elektryczne i wentylacyjne. Dobre przygotowanie to podstawa sukcesu i uniknięcia kosztownych poprawek w przyszłości.

Jak zaplanować przestrzeń warsztatu w piwnicy?
Dokładne pomiary są absolutnie kluczowe. Nie wystarczy zmierzyć długości i szerokości musisz uwzględnić wszelkie przeszkody, takie jak rury, filary, okna czy drzwi. Na podstawie tych danych możesz stworzyć realistyczny plan, który pozwoli Ci zaplanować układ stref roboczych, przechowywania oraz komunikacji. Pamiętaj, że każdy centymetr ma znaczenie, zwłaszcza w małej piwnicy.
W moim warsztacie zawsze staram się wydzielić funkcjonalne strefy. Podstawą jest strefa robocza z głównym stołem warsztatowym, gdzie wykonuję większość prac. Obok niej powinna znaleźć się strefa przechowywania, wyposażona w regały i szafki na narzędzia i materiały. Jeśli masz taką możliwość, warto pomyśleć o wydzieleniu strefy brudnej lub czyszczenia, co ułatwi utrzymanie porządku. Kluczowe jest dbanie o ergonomię wszystko powinno być pod ręką, a ruchy wykonywane w sposób naturalny. Maksymalne wykorzystanie dostępnej przestrzeni, zwłaszcza pionowej, to podstawa efektywnego warsztatu.
Wielokrotnie widziałem, jak ludzie popełniają te same błędy, urządzając małe warsztaty. Oto najczęstsze z nich i moje rady, jak ich uniknąć:
- Zagracenie przestrzeni: Zamiast kupować wszystko na raz, zacznij od niezbędnych rzeczy i stopniowo uzupełniaj wyposażenie. Stosuj rozwiązania pionowe.
- Brak spójnego planu: Nie działaj impulsywnie. Zawsze najpierw stwórz szczegółowy projekt na papierze, uwzględniając wymiary i rozmieszczenie sprzętu.
- Ignorowanie problemów z wilgocią lub oświetleniem: To fundamenty. Bez ich rozwiązania, nawet najlepiej wyposażony warsztat będzie nieprzyjemny i niebezpieczny. Zawsze zacznij od usunięcia tych podstawowych problemów.
- Niewykorzystanie ścian: Ściany to cenne miejsce! Tablice narzędziowe, półki i listwy magnetyczne to Twoi sprzymierzeńcy w walce o porządek.
Pokonaj kluczowe wyzwania piwnicznego warsztatu
Nie ma co ukrywać wilgoć to największy wróg warsztatu w piwnicy. Prowadzi do korozji narzędzi, niszczenia materiałów, a co gorsza, do rozwoju pleśni, która jest szkodliwa dla zdrowia. Zignorowanie tego problemu to proszenie się o kłopoty i dodatkowe koszty w przyszłości.
Aby skutecznie walczyć z wilgocią, musisz podjąć konkretne kroki:
- Sprawdzenie i uszczelnienie ścian: Zlokalizuj wszelkie pęknięcia i nieszczelności. Użyj specjalnych mas uszczelniających lub zapraw hydroizolacyjnych.
- Wykonanie hydroizolacji podłogi: To podstawa. Możesz zastosować specjalne membrany lub folie w płynie, a następnie przykryć je wylewką i np. gresem, który jest odporny na wilgoć.
Oprócz podstawowych prac izolacyjnych, warto zastosować dodatkowe rozwiązania wspomagające walkę z pleśnią i wilgocią:
- Malowanie ścian farbami odpornymi na wilgoć: Specjalne farby z dodatkami grzybobójczymi tworzą barierę ochronną.
- Regularne wietrzenie pomieszczenia: Nawet krótka, ale intensywna wymiana powietrza potrafi zdziałać cuda.
- Stosowanie osuszaczy powietrza: To bardzo skuteczne urządzenia, które pomogą utrzymać wilgotność na optymalnym poziomie. Pamiętaj, aby dążyć do utrzymania wilgotności w zakresie 30-50%.
Kolejnym wyzwaniem jest słabe oświetlenie. Piwnice z natury są ciemne, a niedostateczna ilość światła nie tylko obniża komfort pracy, ale przede wszystkim zwiększa ryzyko wypadków. Trudno jest precyzyjnie pracować, gdy nie widzimy detali.
Dlatego zawsze zalecam montaż jasnego oświetlenia LED. Lampy liniowe lub panele LED o neutralnej lub zimnej barwie (4000-5000 K) doskonale sprawdzają się w warsztacie. Taka barwa światła poprawia widoczność detali, zmniejsza zmęczenie oczu i sprzyja koncentracji.
Nie wystarczy jedna lampa. Należy zainstalować kilka punktów świetlnych, aby równomiernie rozjaśnić całą przestrzeń i co najważniejsze uniknąć cieni. Szczególną uwagę poświęć oświetleniu nad blatem roboczym. Moje doświadczenie podpowiada, że minimalna moc oświetlenia to 2000 lumenów na metr kwadratowy, aby zapewnić odpowiednią jasność do precyzyjnych prac.
Wentylacja to często niedoceniany, a niezwykle ważny element każdego warsztatu, zwłaszcza w piwnicy. Jest kluczowa do usuwania pyłów, oparów farb, klejów czy rozpuszczalników, a także do zapewnienia świeżego powietrza, co ma bezpośredni wpływ na Twoje zdrowie i komfort pracy.
W Polsce kwestie wentylacji reguluje między innymi norma PN-83/B-03430. Zgodnie z nią, w piwnicach należy zapewnić zarówno dopływ powietrza (np. przez specjalne okna, nawiewniki), jak i odpływ (przewody wentylacji grawitacyjnej lub mechanicznej). To podstawowa zasada, którą musimy respektować.
W piwnicach bez okien, gdzie wentylacja grawitacyjna jest niewystarczająca lub niemożliwa, konieczna jest wentylacja mechaniczna. Najprostszym i jednocześnie bardzo skutecznym rozwiązaniem jest montaż wentylatora wyciągowego w istniejącym kanale wentylacyjnym. Taki wentylator zapewni cyrkulację powietrza i skutecznie usunie zanieczyszczenia z warsztatu.
Niezbędne wyposażenie każdego warsztatu
Dla mnie stół warsztatowy to serce każdego warsztatu. To właśnie przy nim spędzasz najwięcej czasu, dlatego musi być solidny, stabilny i mieć duży blat. Regulowana wysokość to ogromny atut, który pozwala dostosować go do różnych rodzajów prac i Twojego wzrostu. Z doświadczenia wiem, że w piwnicy lepiej sprawdzają się modele metalowe, które są znacznie bardziej odporne na wilgoć niż te drewniane.
Efektywna organizacja narzędzi i materiałów to podstawa wydajnej pracy. W małym warsztacie kluczowe jest maksymalne wykorzystanie przestrzeni pionowej. Im więcej rzeczy zawiesisz na ścianach, tym więcej miejsca zostanie na blacie i podłodze.
Tablice narzędziowe, czyli popularne pegboardy, oraz listwy magnetyczne to moje ulubione rozwiązania do przechowywania narzędzi na ścianach. Dzięki nim narzędzia są zawsze pod ręką, łatwo je znaleźć i odwiesić na miejsce. To proste, a zarazem niezwykle skuteczne.
Aby utrzymać porządek, niezbędne są również:
- Regały: Najlepiej metalowe, z regulowanymi półkami, które pomieszczą większe przedmioty i materiały.
- Szafki: Idealne do przechowywania rzeczy, które chcesz chronić przed kurzem lub po prostu ukryć.
- Przezroczyste organizery/pojemniki: Niezastąpione na drobne elementy, takie jak śruby, gwoździe, podkładki czy wiertła. Dzięki przezroczystości od razu widzisz, co jest w środku.
Nie mogę nie wspomnieć o mobilnych wózkach narzędziowych. To prawdziwy game changer! Zwiększają komfort pracy, ponieważ możesz łatwo przenieść potrzebne narzędzia tam, gdzie akurat pracujesz. Dodatkowo oferują cenną przestrzeń do przechowywania, często z szufladami i przegródkami.

Podstawowe narzędzia do warsztatu co kupić na początek?
Jeśli dopiero zaczynasz, nie musisz od razu kupować wszystkiego. Oto mój "żelazny zestaw" narzędzi ręcznych, bez którego trudno rozpocząć majsterkowanie:
- Młotek: Uniwersalny do wielu prac.
- Kombinerki i szczypce: Niezbędne do chwytania, cięcia i gięcia.
- Zestaw wkrętaków: Płaskie i krzyżowe w różnych rozmiarach to podstawa.
- Zestaw kluczy: Nasadowe i płasko-oczkowe do śrub i nakrętek.
- Miara zwijana i poziomica: Precyzja to podstawa!
Jeśli chodzi o elektronarzędzia, wiertarko-wkrętarka to pierwsze i najbardziej uniwersalne narzędzie, w które powinieneś zainwestować. Pozwoli Ci wiercić i wkręcać w niemal każdy materiał. Jako kolejny przydatny nabytek, szczególnie jeśli planujesz prace z metalem czy drewnem, mogę zasugerować szlifierkę kątową.
Zawsze powtarzam moim znajomym: na niektórych narzędziach, zwłaszcza tych kluczowych dla bezpieczeństwa i precyzji, nie warto oszczędzać. Dobra wiertarka, solidne klucze czy precyzyjna miara to inwestycja w jakość, trwałość i przede wszystkim w komfort Twojej pracy. Lepiej kupić mniej, ale lepiej.
Bezpieczny warsztat w piwnicy kluczowe zasady
Bezpieczeństwo to dla mnie priorytet numer jeden w każdym warsztacie. Instalacja elektryczna musi być dostosowana do zwiększonego obciążenia, jakie generują elektronarzędzia. Należy zaplanować odpowiednią liczbę gniazdek, aby absolutnie unikać stosowania długich przedłużaczy, które są częstą przyczyną potknięć i pożarów. Zdecydowanie warto rozważyć wydzielenie osobnego obwodu dla warsztatu i zabezpieczenie go wyłącznikiem różnicowoprądowym (RCD), który chroni przed porażeniem. Pamiętaj, że wszelkie prace przy instalacji elektrycznej powinna wykonywać osoba z odpowiednimi uprawnieniami.
Każdy warsztat, niezależnie od rozmiaru, musi być wyposażony w podstawowe elementy bezpieczeństwa:
- Gaśnica: Obowiązkowo proszkowa, która sprawdzi się przy większości typów pożarów (drewno, ciecze, urządzenia elektryczne).
- Apteczka pierwszej pomocy: Zawsze pod ręką, dobrze wyposażona w plastry, bandaże, środki dezynfekujące.
- Środki ochrony osobistej (PPE): Zawsze używaj okularów ochronnych podczas pracy z elektronarzędziami, rękawic roboczych chroniących dłonie oraz ewentualnie ochronników słuchu, jeśli pracujesz z głośnymi maszynami.
Oprócz sprzętu, niezwykle ważne są zasady BHP, które powinny stać się Twoją drugą naturą:
- Utrzymanie porządku: Czysty i uporządkowany warsztat to bezpieczny warsztat. Nie zostawiaj narzędzi na podłodze, odkładaj je na miejsce po użyciu.
- Nieużywanie narzędzi pod wpływem alkoholu czy leków: To absolutny zakaz. Twoja koncentracja i refleks muszą być na najwyższym poziomie.
- Znajomość obsługi każdego narzędzia: Zawsze przeczytaj instrukcję obsługi przed pierwszym użyciem nowego narzędzia. Wiedz, jak je włączyć, wyłączyć i jak działa jego zabezpieczenie.
Warsztat w piwnicy bloku co musisz wiedzieć?
Urządzanie warsztatu w piwnicy w bloku to nieco inna bajka niż w domu jednorodzinnym. Kluczowe jest, abyś sprawdził regulamin wspólnoty mieszkaniowej lub spółdzielni. Dokumenty te często zawierają ograniczenia dotyczące hałasu, zapachów czy możliwości ingerencji w instalacje wspólne. Wszelkie większe zmiany, takie jak prowadzenie nowej instalacji elektrycznej czy modyfikacja wentylacji, zawsze wymagają zgody zarządcy. Ignorowanie tych zasad może prowadzić do nieprzyjemnych konsekwencji, włącznie z koniecznością demontażu warsztatu.
Musisz pamiętać, że Twoja działalność warsztatowa nie może być uciążliwa dla sąsiadów. Mieszkanie w bloku to kompromis i wzajemny szacunek. Oto, jak możesz ograniczyć potencjalne niedogodności:
- Ograniczenie hałasu: Pracuj w określonych godzinach (np. w ciągu dnia, unikając wczesnych poranków i późnych wieczorów). Rozważ izolację akustyczną ścian i drzwi piwnicy.
- Kontrola zapachów: Zadbaj o bardzo dobrą wentylację, zwłaszcza jeśli używasz farb, klejów czy rozpuszczalników. Unikaj silnie pachnących substancji, które mogą przedostawać się do innych części budynku.
